CDI - поделитесь схемой моторной проводки На w140 om603 | benzpro

CDI поделитесь схемой моторной проводки На w140 om603

Дизельные системы
Доброе утро. Не знаю, в правильную ветку написал или нет. Привезли моторную косу от старичка w140 3.5td на 603ем моторе который. Тысячу раз делал косы на этот мотор, схема проводки есть и сам зарисовывал для плетения и в Старфиндере и в митчеле. В висе у меня нет схем на 140.Но этот авто июнь 95 года уже с elab клапаном и проводка другая. К сожалению до меня её просто отрезали от разъема и естественно изоляция осыпалась, поэтому хоть как-то вызванить не получится. Может у кого есть старый вис и поделитесь схемой моторной проводки, был бы очень признателен. В Калининграде у коллег, кто занимается Мерсами спрашивал, тоже в висе нет ни у кого.Может эти схемки во Флипбуках где-то есть? Если что вот вин wdb1401341a275631
 
Доброе утро. Не знаю, в правильную ветку написал или нет. Привезли моторную косу от старичка w140 3.5td на 603ем моторе который. Тысячу раз делал косы на этот мотор, схема проводки есть и сам зарисовывал для плетения и в Старфиндере и в митчеле. В висе у меня нет схем на 140.Но этот авто июнь 95 года уже с elab клапаном и проводка другая. К сожалению до меня её просто отрезали от разъема и естественно изоляция осыпалась, поэтому хоть как-то вызванить не получится. Может у кого есть старый вис и поделитесь схемой моторной проводки, был бы очень признателен. В Калининграде у коллег, кто занимается Мерсами спрашивал, тоже в висе нет ни у кого.Может эти схемки во Флипбуках где-то есть? Если что вот вин wdb1401341a275631
В WISе не было схем 140, так же как и 202.
Посмотрю сейчас, если нужный том найду попробую фото сделать.
 
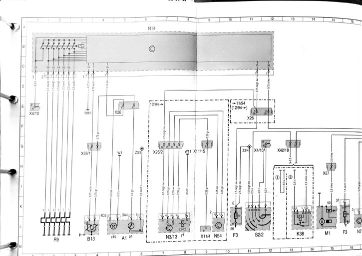
IMG_20250626_125643.jpg
IMG_20250626_125815.jpg
IMG_20250626_125921.jpg
IMG_20250626_125815.jpgIMG_20250626_125921.jpg
IMG_20250626_124843.jpg
Прошу прощения за "всратые" фотки, снял на телефон, камера сама вертится, а в телефоне повернуть нет возможности.
ППо вину должна быть вроде эта схема.
IMG_20250626_124843.jpg
 
там протяжной сканер нужен, который протяжкой сканирует. озадачить IT отдел. арендой, покупкой или в копицентре сделать.
 
W140.134 поставлялась на американский рынок в 95 году с мотором 603.971. Схемы есть в офлайновой Alldata 10.40 - 10.53. На Rutracker лежит. Весь объем вам вряд-ли нужен, можно скачать только Европу.
 
А у вас проблема с N3/13? Он в схеме IRCL группа 80.
у меня даже с ним ещё пара лишних пинов остаётся(
сообщение автоматически склеено:

А у вас проблема с N3/13? Он в схеме IRCL группа 80.
и на этот клапан на разъем всего два провода приходят, в общем какая-то путаница
проводка temic a1404400305
сообщение автоматически склеено:

точнее a1404400306
 
Я пока не нашел раскладку IRCL, в штаты в этой комплектации не поставлялась, 1995 был последним для 603 мотора в штатах. Может уважаемый vilory найдет, завтра ещё пороюсь.
 
15.01 добавил
 

Вложения

  • IMG_20250627_085544.jpg
    IMG_20250627_085544.jpg
    1.7 MB · Просмотров: 19
  • IMG_20250627_085552.jpg
    IMG_20250627_085552.jpg
    1.9 MB · Просмотров: 16
  • IMG_20250627_085603.jpg
    IMG_20250627_085603.jpg
    1.9 MB · Просмотров: 18
Назад
Верх